Focus // Flex Office
Alternate Option 1
-
View / Download
-
CAD | Revit | JPEG | PDF Overview
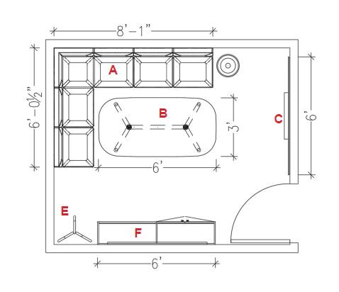
A | Clique Bench: 6 Seat with Metal Leg, Power TBD
B | 72”w x 36”d Bevy Rectangular Y Pedestal Table, No Power
C | 72"w x 48"h Wall Mounted Whiteboard
D | Yuri Floor Lamp
E | Zones Coat Stand
F | 27"h x 14"d x 72"w Byward High Cabinet Left Closed & Right Open
G | Casual Power Post, Lounge Height (17”h), 2 Power, 1 USB A&C
-

Bench
Studio TK Clique Bench
-

Meeting Table
Studio TK Bevy Table
-

Credenza
Teknion Byward Credenza
-

Power
Teknion Casual Power Post
-

Lamp
Yurei Floor Lamp
-

Coat Rack
Teknion Zones Coat Stand