Meeting // Medium Meeting Room
Standard Layout
-
View / Download
-
CAD | Revit | JPEG | PDF Overview
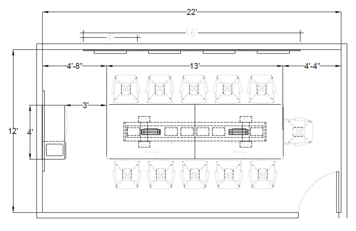
SPECIFICATIONS
A | 48”d x 156”w Rectangular Conference Table with Radius Corners, Oblong Base, Laminate top.
Includes Top Power
B | 48”w x 36 ”h x 20”d Laminate Credenza with Solid Doors and Trash
C | (4) 48”w x 48”h Wall Mounted whiteboard
D | Conference Chair
Conference Table
-

Conference Table
Teknion Expansion
Base Option 1 -
Conference Table
Teknion Expansion
Base Option 2 -
Conference Table
Teknion Expansion
Base Option 3 -
Conference Table
Teknion Expansion
Base Option 4
Credenza
-

Credenza
Teknion Expansion
Credenza Option 1 -

Credenza
Teknion Expansion
Credenza Option 2 -

Credenza
Teknion Expansion
Credenza Option 3
Seating
-

Conference Chair OPT 1
Studio Tk Jotta
-

Conference Chair OPT2
Sit On It Sephen